姫路市の不動産|くらすONE > 姫路市広畑区蒲田/中古戸建
くらすONEは一級建築士、宅地建物取引士、専属デザイナー、各分野のプロが在籍している不動産仲介をはじめ注文住宅やリフォームにも特化しているお店です♪住まいに関する事は何でも気軽にお問い合わせください。姫路市・たつの市周辺の取扱い物件数地域NO.1!その他エリアのご相談も大歓迎★一緒にお悩みを解決していきましょう!!










(※元利均等方式 金利5.00%まで ※返済年数5~50年まで入力できます)
(※ボーナスは年2回で計算しています。1000万円まで入力できます)
(※物件購入時、その他諸費用が発生する場合がございます)
| 所在地 | 兵庫県姫路市広畑区蒲田 | ||
|---|---|---|---|
| 交通 | |||
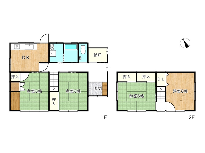
| 間取り/詳細 |
4DK/ DK 1室/和室 6.0帖 2室/和室 6.0帖 1室/洋室 6.0帖 1室 |
建物面積(坪数) | 86.58㎡(26.19坪) |
| 価格 | 590万円 | ||
| 駐車場/月額料金 | 無/- | ||
| 土地の敷金/保証金 | -/- | 借地料/借地期間 | -/- |
| 土地権利 | 所有権 | 土地面積(坪数) | 140.01㎡(42.35坪) |
| 傾斜地部分面積 | - | 路地状敷地 | - |
| 私道負担面積/セットバック | -/無 | 高圧線下面積 | - |
| 地目/地勢 | 宅地/平坦 | 接道状況 | 角地(東 公道 6.1m 間口 6.0m)(南 公道 6.0m 間口 11.0m) |
| 建ぺい率/容積率 | 60%/150% | 用途地域 | 第一種中高層住居専用 |
| 都市計画 | 市街化区域 | 種別/構造 | 中古一戸建/木造 |
| 階建 | 2階建 | 築年月(築年数) | 1975年 10月 (築50年) |
| 総区画数/販売区画数 | -/- | 向き | - |
| 現況 | 空家 | その他の法令上の制限 | 景観法 |
| 取引態様/引渡時期 | 仲介/相談 | 建築確認番号 | - |
| 物件番号 | 92687429 | 取引条件の有効期限 | 2025年11月17日 |
| 設備条件 |
|
||
| 備考 |
八幡小学校まで約1598m●夢前中学校まで約3090m ●資金計画や事前審査のご相談もお気軽に! |
||
| 取扱会社 |
|
||
| QRコード |
このQRコードを読み取ることで、スマホでも物件情報を確認できます。 |
||
※地図上に表示される物件の位置は付近住所に所在することを表すものであり、実際の物件所在地とは異なる場合がございます。
姫路市広畑区蒲田/中古戸建に関するこだわり条件から探す
姫路市の町名から探す
姫路市にある駅から探す