姫路市の不動産|くらすONE > たつの市揖保町松原/中古戸建
くらすONEは一級建築士、宅建取引士、専属デザイナー、各分野のプロが在籍しており、不動産仲介をはじめ注文住宅やリフォームにも特化しているお店です♪姫路市・たつの市周辺の住まいに関するご相談は株式会社くらすONEまでご相談ください!その他エリアのご相談も大歓迎★一緒にお悩みを解決していきましょう!!










(※元利均等方式 金利5.00%まで ※返済年数5~50年まで入力できます)
(※ボーナスは年2回で計算しています。1000万円まで入力できます)
(※物件購入時、その他諸費用が発生する場合がございます)
| 所在地 | 兵庫県たつの市揖保町松原 | ||
|---|---|---|---|
| 交通 | |||
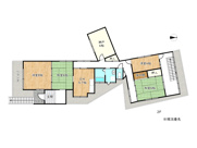
| 間取り/詳細 |
6DK/ DK 10.0帖 1室/洋室 11.0帖 1室/洋室 8.0帖 1室/和室 6.0帖 4室 |
建物面積(坪数) | 160.52㎡(48.55坪) |
| 価格 | 250万円 | ||
| 駐車場/月額料金 | -/- | ||
| 土地の敷金/保証金 | -/- | 借地料/借地期間 | -/- |
| 土地権利 | 所有権 | 土地面積(坪数) | 449.58㎡(135.99坪) |
| 傾斜地部分面積 | - | 路地状敷地 | - |
| 私道負担面積/セットバック | -/無 | 高圧線下面積 | - |
| 地目/地勢 | 宅地/- | 接道状況 | - |
| 建ぺい率/容積率 | 60%/200% | 用途地域 | 工業 |
| 都市計画 | 市街化区域 | 種別/構造 | 中古一戸建/木造 |
| 階建 | 1階建 | 築年月(築年数) | 1963年 3月 (築63年) |
| 総区画数/販売区画数 | -/- | 向き | - |
| 現況 | 空家 | その他の法令上の制限 | - |
| 取引態様/引渡時期 | 仲介/相談 | 建築確認番号 | - |
| 物件番号 | 73789458 | 取引条件の有効期限 | 2026年03月24日 |
| 設備条件 |
|
||
| 備考 | ●揖保小学校まで約1174m ●龍野西中学校まで約5099m ●接道なし ●現況優先 ●資金計画や事前審査のご相談もお気軽に! | ||
| 取扱会社 |
|
||
| QRコード |
このQRコードを読み取ることで、スマホでも物件情報を確認できます。 |
||
※地図上に表示される物件の位置は付近住所に所在することを表すものであり、実際の物件所在地とは異なる場合がございます。
たつの市揖保町松原/中古戸建に関するこだわり条件から探す
たつの市の町名から探す
たつの市揖保町松原/中古戸建周辺の駅から探す