姫路市の不動産|くらすONE > 姫路市砥堀/中古戸建
くらすONEは一級建築士、宅地建物取引士、専属デザイナー、各分野のプロが在籍している不動産仲介をはじめ注文住宅やリフォームにも特化しているお店です♪住まいに関する事は何でも気軽にお問い合わせください。姫路市・たつの市周辺の取扱い物件数地域NO.1!その他エリアのご相談も大歓迎★一緒にお悩みを解決していきましょう!!










(※元利均等方式 金利5.00%まで ※返済年数5~50年まで入力できます)
(※ボーナスは年2回で計算しています。1000万円まで入力できます)
(※物件購入時、その他諸費用が発生する場合がございます)
| 所在地 | 兵庫県姫路市砥堀1390-35、1390-9、31-2 | ||
|---|---|---|---|
| 交通 | |||
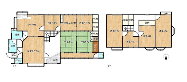
| 間取り/詳細 | 10DK/ | 建物面積(坪数) | 145.45㎡(43.99坪) |
| 価格 | 480万円 | ||
| 駐車場/月額料金 | 有(2台)/0円 | ||
| 土地の敷金/保証金 | -/- | 借地料/借地期間 | -/- |
| 土地権利 | 所有権 | 土地面積(坪数) | 451.82㎡(136.67坪) |
| 傾斜地部分面積 | - | 路地状敷地 | - |
| 私道負担面積/セットバック | -/無 | 高圧線下面積 | - |
| 地目/地勢 | 宅地/平坦 | 接道状況 | 一方(南 私道 1.6m 間口 1.6m) |
| 建ぺい率/容積率 | 60%/200% | 用途地域 | 無指定 |
| 都市計画 | 市街化調整区域 | 種別/構造 | 中古一戸建/木造 |
| 階建 | 2階建 | 築年月(築年数) | 1962年 10月 (築63年) |
| 総区画数/販売区画数 | -/- | 向き | - |
| 現況 | 空家 | その他の法令上の制限 | - |
| 取引態様/引渡時期 | 仲介/相談 | 建築確認番号 | - |
| 物件番号 | 78477849 | 取引条件の有効期限 | 2026年02月03日 |
| 設備条件 |
|
||
| 備考 |
●砥堀小学校まで約1321m●増位中学校まで約1868m ●線引前からの建物の為、使用・賃貸可●現状建築基準法道路に未接道の為、再建築不可 ●公図上地番無●離れた場所に駐車場普通車1台・軽自動車1台(縦列)有 ●資金計画や事前審査のご相談もお気軽に! |
||
| 取扱会社 |
|
||
| QRコード |
このQRコードを読み取ることで、スマホでも物件情報を確認できます。 |
||
※地図上に表示される物件の位置は付近住所に所在することを表すものであり、実際の物件所在地とは異なる場合がございます。
姫路市砥堀/中古戸建に関するこだわり条件から探す
姫路市の町名から探す
姫路市にある駅から探す